236 AVH

ANNÉE

2023

LOCALISATION

Val de Marne

SUPERFICIE

460M2

TYPE

Maison

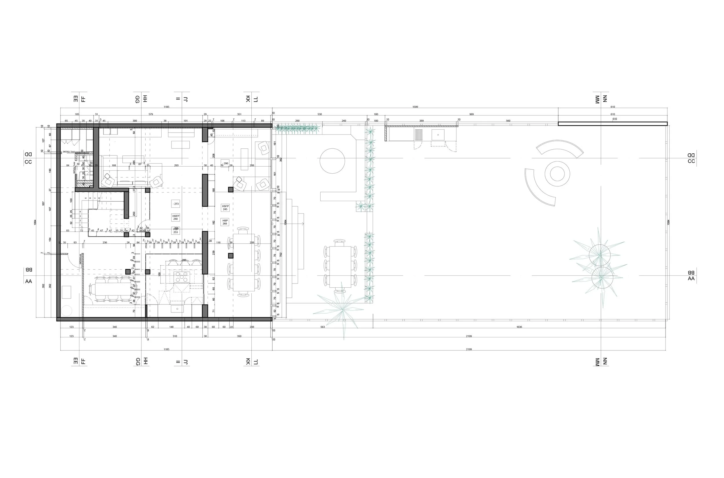
Située dans le Val de Marne, cette maison de quatre étages a subie une rénovation complète pour créer un espace familial et accueillant.

L’atmosphère cosy est accentuée par l’utilisation des tons clairs et des matières naturelles ainsi que par la luminosité générale de la maison. Celle-ci est amenée grâce à la création d’ouvertures et de larges cloisons vitrées.

Précédent
Précédent

2APDG

Suivant
Suivant

41 BDC