45 RPB

ANNÉE

2020

LOCALISATION

Hauts de Seine

SUPERFICIE

26M2

TYPE

Studio

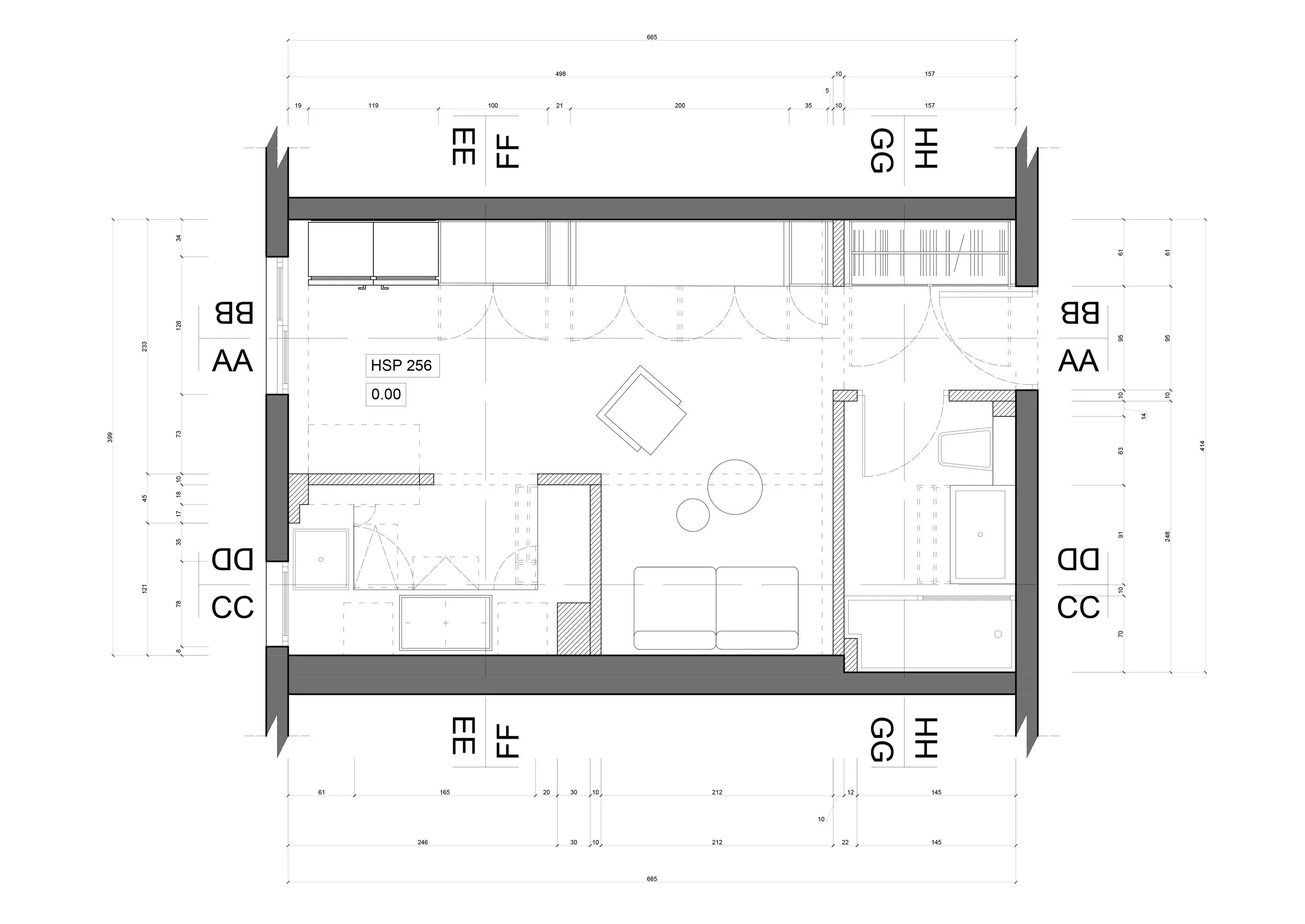
Dédié à la location saisonnière, ce studio de 26m² situé dans les Hauts de Seine a bénéficié d’un rafraichissement.

Afin d'amener la luminosité nécéssaire dans cet espace, l'utilisation du blanc et la création d'une ouverture entre la cuisine et l'espace salon semblaient évidents.

La création d’un mobilier sur mesure en chêne naturel vient contraster et donner une touche de modernité à l’ensemble. Plus que de simples rangements, cette menuiserie abrite un espace dressing, un espace bureau ainsi que l’espace nuit.

Espace nuit avec menuiserie sur mesure
Précédent
Précédent

41 BDC